Event
Auto
Immo
Job
ANZEIGEN
MARKT-
MARBURG
✖
Immobilien
Hier Angebot veröffentlichen
❯ Wohnung Mieten
❯ Wohnung Kaufen
❯ Zimmer mieten
❯ Haus Kaufen
❯ Haus Mieten
❯ Gewerbeimmobilie Kaufen
❯ Gewerbeimmobilie Mieten
❯ Grundstück Kaufen
Messen & Events
Experten finden
Stadtteile von Marburg
❯ Oberstadt
❯ Weidenhausen
❯ Südviertel
❯ Biegenviertel
❯ Ortenberg
❯ Hansenhaus
❯ Marbach
❯ Ockershausen
❯ Waldtal
❯ Richtsberg
❯ Stadtwald
❯ Wehrshausen
❯ Neuhöfe
❯ Wehrda
❯ Cappel
Orte in der Nähe
❯ Kirchhain
❯ Gladenbach
❯ Dautphetal
❯ Stadtallendorf
❯ Lollar
❯ Biedenkopf
Orte im Umkreis
❯ Gießen
❯ Frankenberg (Eder)
❯ Grünberg
❯ Bad Laasphe
❯ Buseck
Events
Freizeit
Autos
Jobs
HOME
❯
IMMOBILIEN
❯
WOHNUNG-MIETEN
❯
ANZEIGE
❯
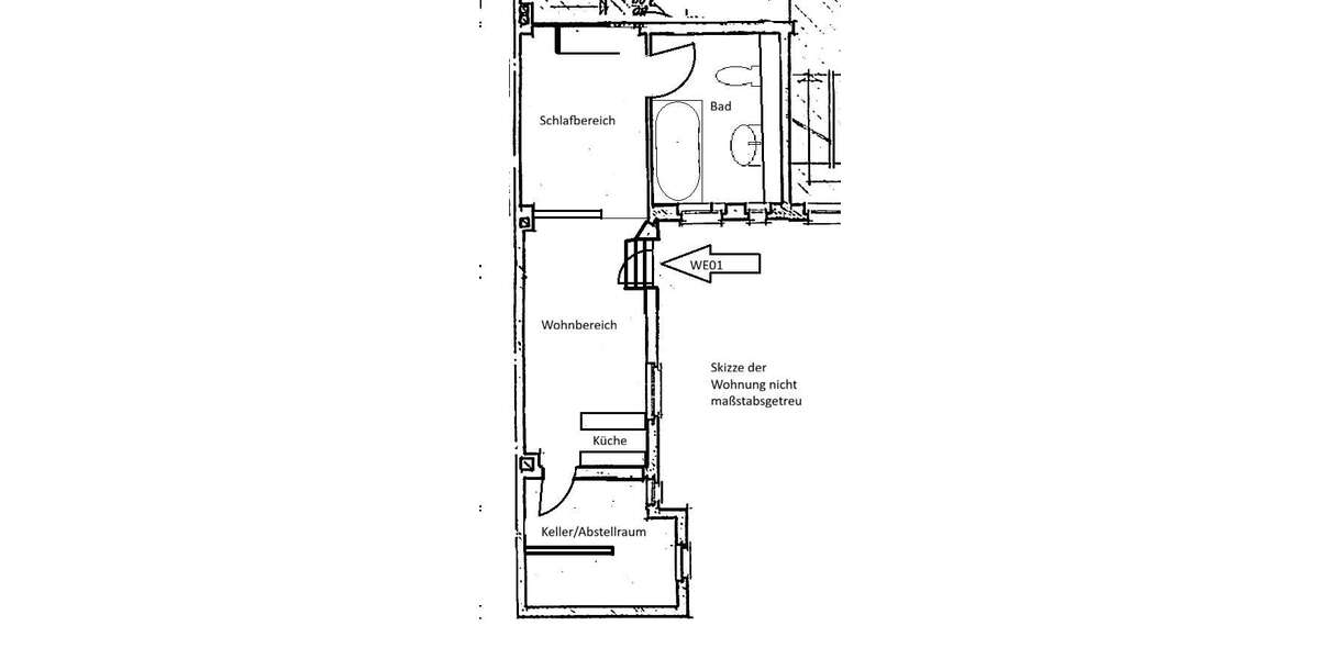
Wohnung zum Mieten in Marburg 585 € 45 m²
Informationen zur Immobilie:
Zimmeranzahl
1
Ort
35037 Marburg
Objektart
Wohnung
Größe
ca. 45,00 m²
585 €
(zzgl. Nebenkosten)
Kaltmiete
Beschreibung:
Wohnung zum Mieten in Marburg 585 € 45 m² ...
mehr erfahren
Mehr Infos ➜
weitere 1 Zimmer Wohnungen
❮
alle 1 Zimmer Wohnungen
❯
alle 1 Zimmer Wohnungen
Ratgeber
Presse
Lokales
Über Uns
Impressum
Datenschutz
Cookies
Copyright © 2000 - 2026 | 1A Infosysteme GmbH | Content by: 1A-Anzeigenmarkt.de 18.04.2026